貨架|倉儲貨架系統提升物流效率與空間利用率
            貨倉設備
            
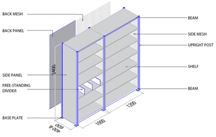
              輕型貨架/Racking
            
          
          輕型貨架採用扣接式組合結構,層板下方有加強鋼層板,外型美觀,不用任何螺栓,安裝與拆卸皆十分便捷。輕型Racking貨架以 50 毫米為節距而任意調整,内裡的層板由鋼板組成,輕型貨架每層負重能力為 100-200 公斤,主要適合存放輕小的物品。
結構圖
 
              輕型貨架的側面和背面均可加設鐵網或鐵板圍身,以防止貨物滑下,亦可加裝分隔片,使貨品擺放更有系統。
            貨倉設備
            
              中型Racking貨架
            
          
          中型貨架採用扣接式結構,拆卸方便,各層間距可依據貨物高度,以每 50毫米 為單位上下調節,其承載範圍可達每層 200至800公斤。層板材料可選擇鋼板、木板或中密度板等,適合不同存儲需求。
中型Racking貨架高度適宜,方便人工取存貨物,是中小型倉庫的理想倉儲產品。
結構圖
 
        
            貨倉設備
            
              橫樑式重型貨架
            
          
          橫樑式重型貨架是使用最廣泛的托盤類貨物存儲系統,具有外型簡潔美觀、安全可靠、存取迅速及節省空間等優點。外層表面以靜電噴粉處理,堅固耐用。層間距為以 75毫米 為一單位上下調節,每貨格最大承重可達 5000 公斤,高度可達 12 米。此重型貨架特點是存取快捷方便,適合存儲各類貨物,是企業倉庫最常用的貨架類型,適合以堆高機或叉車操作使用。
結構圖
 
        
            貨倉設備
            
              通廊式貨架
            
          
          通廊式貨架由連續的貨架組成,中間無通道,根據排列可分為單面駛入式,雙面駛入式和全通廊式。該系統為儲存大量同類的托盤貨物而設計,適合儲存大批量而少種類的貨物。叉車可直接駛入貨道存取貨物,作業極其方便,倉庫利用率高,常見於冷凍倉庫、食品飲料倉庫等。
結構圖
 
        
            貨倉設備
            
              閣樓式貨架
            
          
          閣樓式貨架系統廣泛應用於庫房高度較高、貨物體積較小且量大的情況,也適用於改造現有舊倉庫,以提高倉庫的空間利用率。 這系統可充分利用庫房空間,根據實際場地和具體要求,設計成單層或多層閣樓平台。一般設置為為2至3層,配備樓梯、扶手和貨物升降機等。特別適用於汽配、電子器件等企業系列的產品分類保存,平均承載能力少於或等於每平方米500公斤。運送貨物至二樓或三樓的運輸方式通常包括人工、升降平台、升降機、輸送帶及叉車等。
結構圖
 
        
            貨倉設備
            
              懸臂式貨架
            
          
          懸臂式貨架分為單臂和雙臂兩種,採用專用立柱型材,可加裝背牆拉杆以增強穩固性。此重型貨架擁有高強度的懸臂,每組臂承重可達 2 噸,高度可根據需要以每100毫米為單位上下調節。其組合式結構具備方便輕巧、載重能力好和空間利用率高等優點,特別適合空間小、高度低的庫房。在管理方面,空間視野寬闊,常用於長物料、板材、環型物料和不規則的貨物存儲。
結構圖
 
        
            貨倉設備
            
              流利式貨架
            
          
          使用流利式貨架系統,可以方便地傾斜機架以存取產品。紙箱流道讓產品能更有系統地擺放。所有產品以 FIFO(先入先出)的庫存控制方法存取,確保庫存管理的效率和準確性。
 
         
                 
                 
                 
                 
                 
                